南宁市五象新区地下管廊三网手机信号放大器覆盖工程

项目概况:
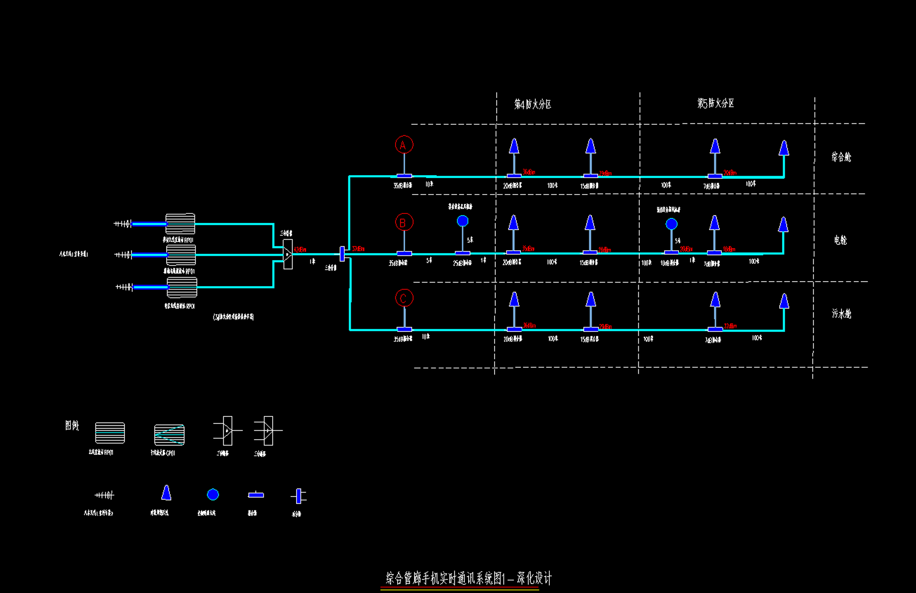
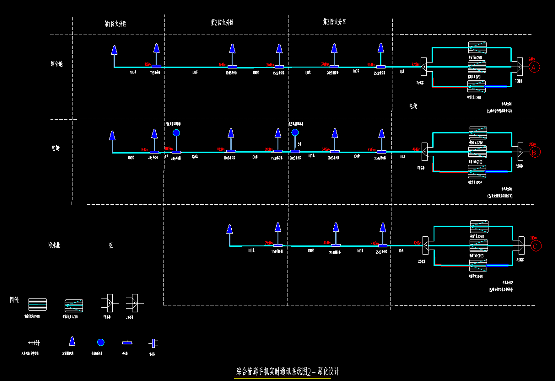
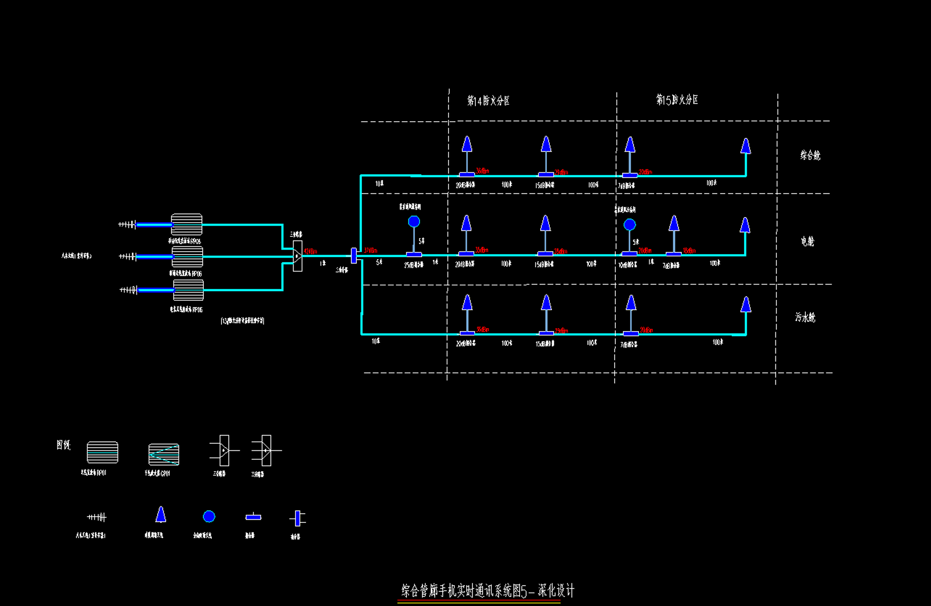
南宁市五象新区龙岗1号路PLDD-03地下管廊全长2950米,如下图所示,分3个并排的独立巷道,每个巷道每间隔150~200米设立防火门,形成44个独立的防火分区,要在每个防火分区实施中国移动、中国联通、中国电信3家运营商的3G4G信号覆盖。

系统设计方案
part1:

part2:

part3:

part4:

part5:

物料清单:
No | 设备名称 | 型号 | 单位 | 数量 |
1 | 800MHz 直放站 | F43T-B5 | pcs | 6 |
2 | 900MHz 直放站 | F43T-B8 | pcs | 6 |
3 | 2100MHz 直放站 | F43T-B1 | pcs | 6 |
4 | 800MHz 干线放大器 | L43T-B5 | pcs | 3 |
5 | 900MHz 干线放大器 | L43T-B8 | pcs | 3 |
6 | 2100MHz 干线放大器 | L43T-B1 | pcs | 3 |
8 | 14dBi 八木天线 | OY8496-1434 | pcs | 12 |
9 | 14dBi 八木天线 | OY1921-1434 | pcs | 6 |
10 | 3路合路器 | RTC200-800/900/2100-N/D | pcs | 12 |
11 | 对数周期天线 | OY0727-1165 | pcs | 90 |
12 | 3路功分器 | SP0727-3NB | pcs | 6 |
13 | 35dB 耦合器 | CP0727-35N | pcs | 3 |
14 | 25dB 耦合器 | CP0727-25N | pcs | 9 |
15 | 20dB 耦合器 | CP0727-20N | pcs | 22 |
16 | 15dB 耦合器 | CP0727-15N | pcs | 21 |
17 | 10dB 耦合器 | CP0727-10N | pcs | 9 |
18 | 7dB 耦合器 | CP0727-7N | pcs | 21 |
19 | 5dB 耦合器 | CP0727-5N | pcs | 1 |
安装现场:

广东禅信通科技有限公司专注手机信号放大器、4G/5G信号放大器、移动信号放大器、电信联通手机信号放大器增强器的研发、生产、销售厂家。提供直放站批发、安装等服务。